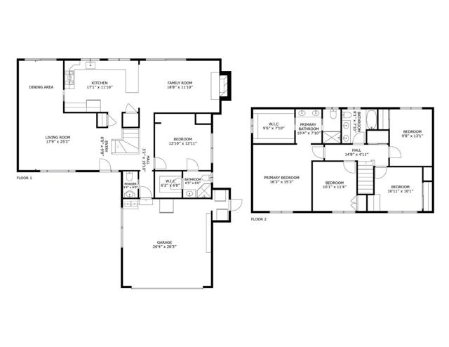
6915 Dartmoor Way, San Jose, CA 95129
5 BD
| 4 Baths
| 2,428 SQ/FT
Offered at
$3,498,000
Welcome to 6915 Dartmoor Way, a beautifully updated home in San Jose with Lynbrook High School. This two story residence blends style, comfort, convenience and offers 5 bedrooms, 3 full bathrooms and a conveniently located downstairs powder bath. Ground floor en-suite is optimal for guests. Step inside to discover fresh interior paint and new carpet. The gleaming hardwood flooring and an open concept floor plan filled with natural light is inviting. The living, dining, and kitchen areas flow seamlessly, ideal for both everyday living and effortless entertaining. The kitchen features stainless steel appliances, granite countertops, and direct access to the patio perfect for alfresco dining or weekend gatherings. Excellent neighborhood for walking, convenient to commuter routes such as 85, 280, Lawrence Expressway and Saratoga/Sunnyvale Road. Just a few minutes away from Cupertino Main, ethnic grocery stores and the Apple Campus. All of this is situated within the boundaries of award winning local schools, making this an ideal place to call home.