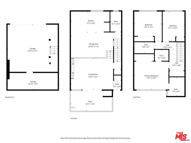
5326 Fairview Boulevard, Los Angeles, CA 90056

3 BD | 3 Baths | 1,724 SQ/FT

Offered at $899,000

Rare opportunity to own a 3-bedroom, 3-bath split-level townhome in Ladera Heights, offering the space and convenience many buyers seek in this Westside community. This property presents like a single-family home with an attached, direct-access garage and ample storage. Interior improvements include smooth ceilings, recessed lighting, engineered hardwood flooring, and ceiling-mounted speakers. The home features double-pane Milgard windows, central heat and AC, and a motorized awning that provides additional shade and privacy for outdoor enjoyment. The upstairs bathrooms have been fully renovated with modern finishes. System upgrades include updated plumbing, a fully upgraded electrical panel, and EV-charger readiness in the garage. The split-level layout offers flexible living, work, and entertainment options. Located in Ladera Heights near the 405 freeway, Westside shopping, schools, beaches, and surrounding neighborhoods, this townhome combines space, functionality, and accessibility in a desirable central location.