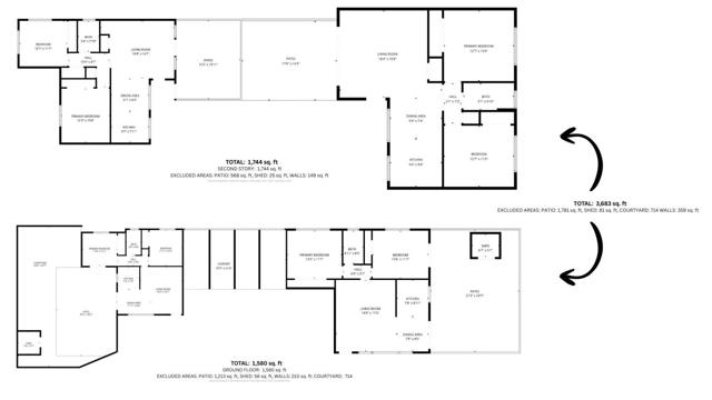
444 Villa Terrace, San Mateo, CA 94401

| 3,607 SQ/FT

Offered at $2,495,000

Beautifully maintained 4 unit building in a prime San Mateo location near top rated schools. Excellent Investment Opportunity, long-term tenants with a low vacancy rate. Each 2BR 1BA unit offers private outdoor space, with decks for the upper units and yards for the lower units. Unit 2 includes a carport plus an uncovered space and could serve as an ideal owners unit with its private backyard. Unit 3 features remodeled kitchen with quartz counters, new cabinets, fixtures, and appliances, and modern bath with new tile, vanity, and flooring. Recent upgrades include roof work, deck waterproofing, exterior paint, new doors, and rebuilt carport. Large 7500 sf lot offers room for expansion and possible additional unit over carports. Walk to downtown Burlingame and San Mateo.