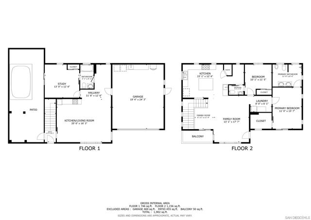
413 Delaware St, Imperial Beach, CA 91932

3 BD | 3 Baths | 1,945 SQ/FT

Offered at $1,399,000

Welcome to this stunning 2024-built luxury residence, perfectly positioned steps from the Silver Strand Bikeway. This innovative 2-story home is thoughtfully designed for multi-generational living, with a self-contained lower level featuring a kitchenette, bedroom, full bathroom, custom stamped concrete, and a service elevator. The main spaces showcase exceptional refinement. The upstairs kitchen has custom soft close cabinets/drawers, quartz counters with glass backsplash, large island with prep sink, overhead chandelier, 48” 6 burner gas stove with grill 48” hood; bar featuring quartz counters with waterfall edges, wine storage/drink cooler, prep sink; lights in all upper glass storage cabinets, lights under counters, and stainless steel appliances. Upstairs, two bedrooms and a luxurious principal suite with a full bathroom featuring a bidet and vanities provide comfortable retreats. Nine-foot ceilings and vinyl wood floor planks. Dual laundry areas and Cat6 wiring throughout reflect modern convenience and thoughtful planning. Two balconies frame stunning water views, while an exclusive roof deck offers breathtaking 360-degree vistas of the Pacific Ocean, downtown skyline, and coastal landscape—perfect for entertaining or peaceful evenings. Premium amenities complete this exceptional property: tankless water heater, above-ground swim spa, 2-car garage, and EV charging connection. The roof deck is hookup-ready for electricity, gas, and water, ensuring this home grows with your needs. Welcome to this stunning 2024-built luxury residence, perfectly positioned steps from the Silver Strand Bikeway. This innovative 2-story home is thoughtfully designed for multi-generational living, with a self-contained lower level featuring a kitchenette, bedroom, full bathroom, custom stamped concrete, and a service elevator. The main spaces showcase exceptional refinement. The upstairs kitchen has custom soft close cabinets/drawers, quartz counters with glass backsplash, large island with prep sink, overhead chandelier, 48” 6 burner gas stove with grill 48” hood; bar featuring quartz counters with waterfall edges, wine storage/drink cooler, prep sink; lights in all upper glass storage cabinets, lights under counters, and stainless steel appliances. Upstairs, two bedrooms and a luxurious principal suite with a full bathroom featuring a bidet and vanities provide comfortable retreats. Nine-foot ceilings and vinyl wood floor planks. Dual laundry areas and Cat6 wiring throughout reflect modern convenience and thoughtful planning. Two balconies frame stunning water views, while an exclusive roof deck offers breathtaking 360-degree vistas of the Pacific Ocean, downtown skyline, and coastal landscape—perfect for entertaining or peaceful evenings. Premium amenities complete this exceptional property: tankless water heater, above-ground swim spa, 2-car garage, and EV charging connection. The roof deck is hookup-ready for electricity, gas, and water, ensuring this home grows with your needs. This architectural masterpiece seamlessly blends sophisticated design, cutting-edge technology, and prime coastal location—ideal for the discerning buyer seeking multi-generational flexibility and exceptional Imperial Beach living.