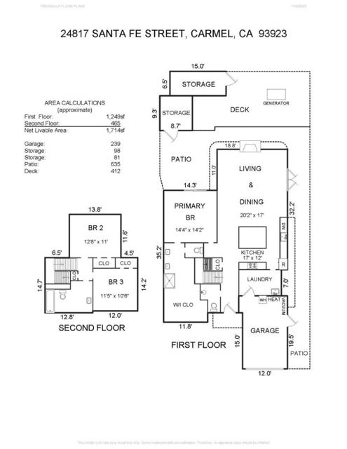
24817 Santa Fe Street, Carmel, CA 93923

3 BD | 3 Baths | 1,714 SQ/FT

Offered at $3,250,000

Inviting from the moment you enter the Carmel stone courtyard of Buttercup Cottage, this home is a perfect blend of charm, warmth and luxury with everything you're looking for in a Carmel home. No detail was overlooked when this home was built in 2016. Artfully blending a light and bright cottage style with modern smart home features like Lutron lighting, built-in audio system, central vacuum and even a generator, no expense was spared in the finishes and touches throughout. Excellent floor plan, 3 bedrooms, 2 1/2 bathrooms, with ample primary suite on the ground floor complete with luxury ensuite bath and large dressing room/closet. Chef's kitchen is the heart of the house; gorgeous cabinetry, top of the line appliances and is "open concept" to spacious living room. Loads of natural light, warmth and beautiful architectural details, all in immaculate condition, this home is truly move-in ready and a great find.