23799 Slns-Mty Highway, Salinas, CA 93908

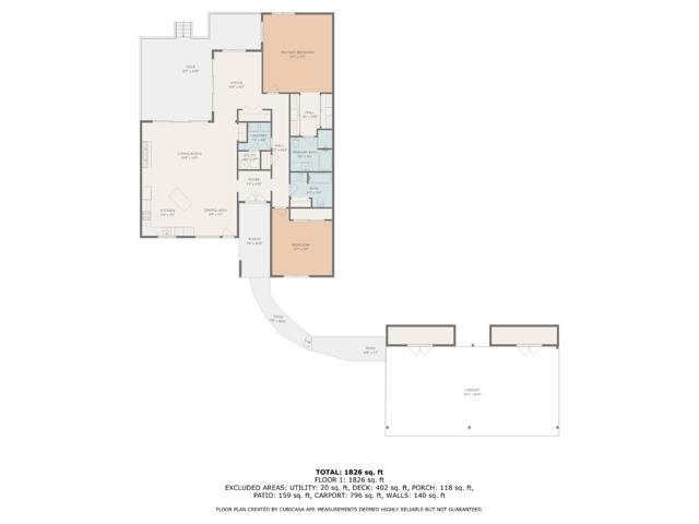
2 BD | 2 Baths | 1,826 SQ/FT

Offered at $839,000

Rare golf villa on a prime lot with sweeping views of the golf course, open space & park-like setting. This fully upgraded single-level villa has been redesigned with an open kitchen flowing into the great room. The spacious primary suite, family room, and office (or potential 3rd bedroom) all open golf course view. Unlike other villas, this gem enjoys a quiet location surrounded by over 40 acres of walkable grounds. Upgrades include fresh exterior paint, custom soft-close cabinetry, granite and marble counters, wide-plank hickory hardwood floors, crystal lighting, Milgard windows and sliders, Velux solar retractable skylights, custom top-down blinds, LED lighting a new electrical panel & Hickory front double doors. The almost 400 sf primary suite offers overlooks the 5th green, a lux spa-like bathroom with a jetted tub, 2 showers, custom cabinets, marble countertops & custom vanity mirror & retractable skylight. Plus dual mirrored closets, dressing area, & opens to a private deck. The second bedroom features a mirrored closet doors, shades & is near tiled full bath w/ custom vanity, travertine tile walls, skylight, & linen closets. The Villas gated community offers many amenities: Clubhouse, rec room, pool & spa, tennis, pickleball, basketball, fishing pond, 10-hole Golf Course.