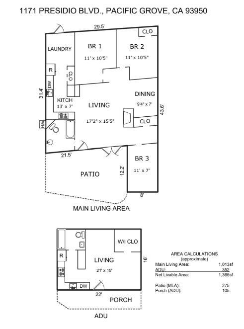
1171 Presidio Boulevard, Pacific Grove, CA 93950

3 BD | 2 Baths | 1,365 SQ/FT

Offered at $1,182,000

Located in the charming coastal town of Pacific Grove, this 3 bedroom, 1 bath home with a newly constructed detached studio Accessory Dwelling Unit (ADU) is the perfect combination of charm, efficiency, style, and comfort. Situated in one of Pacific Grove's sweetest neighborhoods, this bright and light single level home is a delight! Its saltillo tile floors and river rock fireplace makes you feel immediately at home and at ease. The updated kitchen and bath mean you can relax and enjoy your home immediately. The home has been updated with refinished tile floors, updated kitchen and bath, new roof (2022), and recently replaced appliances. There is outside living with an an enchanting front patio and low-maintenance backyard space with built-in storage. The new ocean view studio ADU has vaulted ceilings, a full kitchen and bath, a walk-in closet, it's own laundry hookups, and is perfect for additional income or a wonderful space for family and friends. Close to Pebble Beach, the ocean, shopping, and wonderful schools!